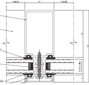
Curtain Wall is the central unit in the planning and design of building envelopes. QURTUBA offers a variety of systems, which allow even the most innovative curtain wall concepts to be realized supremely well architecturally. QURTUBA works with high quality European Aluminium System suppliers, two of which are Technal-France and Aluk-Italy. These System suppliers are well known in Europe. Besides that we have developed our own system called QURTUBA Systems. The variety of options within the systems offers architects and developers considerable scope for creativity.




Office No. 111,
Al Hilal Bank Building,
Al Qusais, Dubai - UAE
PO Box : 237951
Industrial Area
2,
Ajman, UAE